Herengracht, Leiden

Omschrijving

Welkom in het tijdperk van de gouden eeuw in dit herenhuis aan de Herengracht, wat een monument. Hier is wonen de sferen van weleer beleven gecombineerd met de hedendaagse gemakken, een uitzonderlijk interessante combinatie. De locatie is uitsteken, uitzicht over de grachten, winkel centrum op loopafstand, goede verbinding met openbaar vervoer en treinstation Leiden.

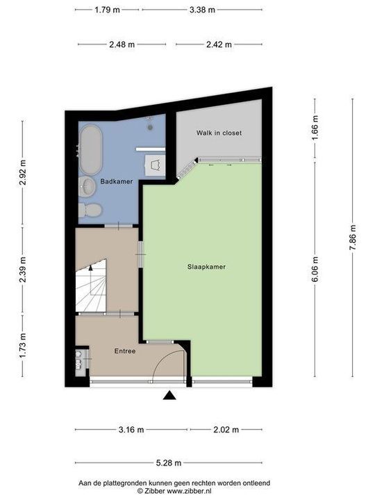
Entree op straat niveau, voor het huis staat een bankje om van het uitzicht te genieten. Tochtportaal, gang. De gang geeft toegang tot de slaapkamer, badkamer en klassieke steile trap. De slaapkamer is licht, ruime en heeft via en-suite deuren toegang tot de inloopkast.

De badkamer is uitgerust met douche, ligbad, wastafel, toilet en wasmachine. De gemakken van de moderne tijd, in een stijl die harmonieus samen gaat met het karakter van het pand.

Trap naar de eerste verdieping, de gang geeft toegang tot de woonkamer, de keuken en de trap naar de top verdieping. Lichte woonkamer met geweldig uitzicht op de gracht, in de zomer komen hier talloze bootjes voorbij varen, een heerlijke sfeer. Wanner je de fantasie even de ruimte geeft zie je zo een zeilschip van de VOC voorbij varen. De woonkamer loopt door in de ruime lichte keuken. De keuken is uitgerust met Koelkast, vriezer, vaatwasser, magnetron, oven gaskookplaat met afzuigkap en gootsteen.

Trap naar de topverdieping, hier is het beste uitzicht! Een lichte open woonkamer, werkkamer of slaapkamer met toegang tot het dakterras.

Wat een charmant huis op een prachtige plek, bent u de nieuwe bewoner die een stukje geschiedenis komt toevoegen aan dit prachtige pand?

Het weten waard:
- de huurprijs is exclusief gas, water, electra, tv en internet;
- de waarborgsom is 1 maand;
- de minimale huurperiode is 1 jaar;
- de woning is beschikbaar voor max. 2 bewoners;
- volledig gemeubileerd;
- centrale verwarming;
- huisdieren / roken niet toegestaan;
- parkeervergunning;

Deze woning is zeker een bezichtiging waard!

Neem gerust contact met ons om een bezichtiging af te spreken.

Expat & Property Management - your partner in quality rentals.

Kenmerken

Prijs
€ 2.250 p.m. ex.
Inrichting
Gemeubileerd
Status
Onder optie
Oplevering
Per direct

Bouw

Soort woonhuis
Grachtenpand, Tussenwoning
Soort bouw
Bestaande bouw
Bouwjaar
1750
Onderhoud binnen
Goed
Onderhoud buiten
Goed

Oppervlakten en inhoud

Woonoppervlakte
100m²
Perceeloppervlakte
35m²
Inhoud
290m³

Indeling

Aantal kamers
3
Aantal slaapkamers
2
Verdiepingen
3

Buitenruimte

Ligging
Aan het water, Aan rustige weg, In woonwijk, Vrij uitzicht, Aan vaarroute

Locatie

[ { "address": "Herengracht 132", "zipCode": "2312 LH", "city": "Leiden", "lat": 52.1604007, "lng": 4.4996628, "heading": 0, "pitch": 0 } ]

Deze woning huren?

Neem contact met ons op. We geven u graag meer informatie of plannen een bezichtiging.

Uw bericht is naar ons verzonden. Wij nemen zo snel mogelijk contact met u op.

Er is iets mis gegaan met het versturen van het formulier.
Controleer of u alle velden (goed) heeft ingevoerd en probeer het nog een keer.

recaptcha
reCAPTCHA
PrivacyTerms
* invullen aub

Plattegronden


Vergelijkbare woningen

Lasserstraat
100m² 2 slaapkamers
€ 2.000 p.m. ex.