Behrenslijn, Zoetermeer

Omschrijving

Beschikbaar voor de periode van 6 maanden: riante 2 onder 1 kap woning, heerlijke ruime tuin die veel privacy biedt, heerlijke lichte woonkamer door de enorme raampartij in de vide, twee badkamers waarvan een met sauna en parkeren op eigen terrein. Op een rustige locatie gelegen, vlak bij het Noord A met strandje, restaurants, en winkels in de buurt. Het centrum van Zoetermeer is binnen 5 minuten beikbaar per auto, het centrum van Den Haag in 20 minuten en in 30 mintuen per openbaar vervoer.

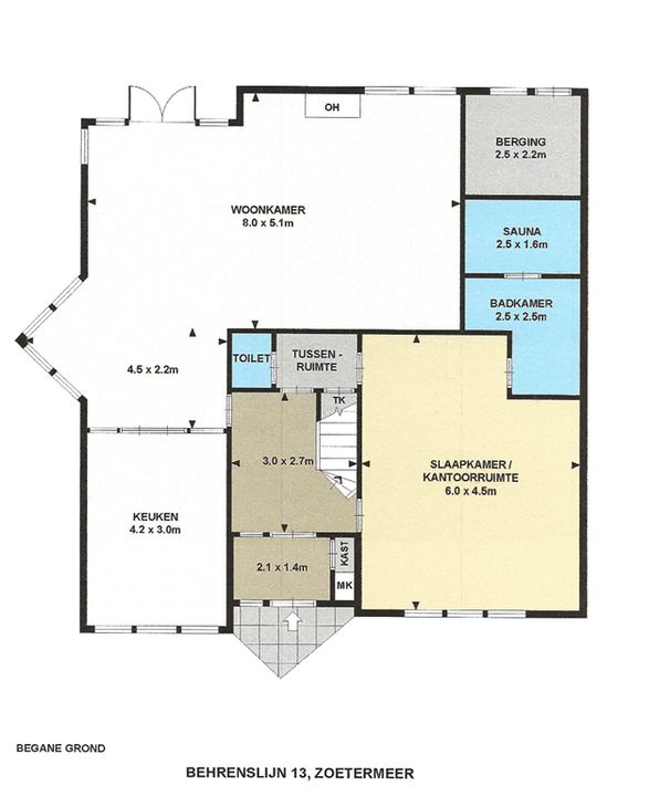
Indeling: Gedeelde oprit met de buren, parkeerplaats voor 2 auto’s. Entree van de woning en toegang tot de tuin. Tochtportaal en gang, welke toegang geeft tot de woonkamer, toilet, slaapkamer/studeerkamer en trap naar de 1ste verdieping. Riante lichte ruime woonkamer met hoog plafond en veel ramen door de vide uitkijkend over de groene tuin. De woonkamer heeft een houtkachel bij de zithoek, altijd gezellig.

De keuken kan zowel afgesloten worden van de woonkamer of met geopende deuren onderdeel zijn van de woonkamer, net wat de voorkeur heeft. De keuken is van prima formaat, licht en uitgerust met koelkast/vriezer, vaatwasser, combi/oven, inductie kookplaat met afzuigkap en meer dan voldoende kastruimte.

De studeerkamer en/of slaapkamer is ruim opgezet en geeft toegang tot de sauna met voorruimte en douche.

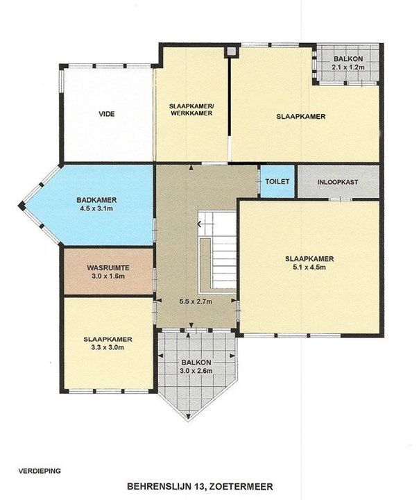
Middels de trap bereikt u de ruime, lichte overloop op de 1ste etage, deze geeft toegang tot alle vertrekken: de master bedroom, 2 slaapkamers, fitnessruimte, wasruimte, badkamer, toilet en balkon.

De master bedroom is ruim van formaat, heeft veel lichtinval en beschikt over een inloopkast. De twee overige slaapkamers zijn gesiturreerd aan de achterkant, waarvan 1 slaapkamer toegang heeft tot een balkon dat uitkijkt over de tuin. De fitnessruimte zit naast de wasruimte welke is voorzien van wasmachine en droger, de nodige bergruimte en cv-ketel.

De badkamer is speels opgezet, ook weer lekker licht, veel ramen en uitgerst met dubbele wastafel, bad onder het raam, en aparte douche. Separaat toilet op de gang.

De tuin biedt veel mogelijkheden, loopt om het huis heen, heeft diverse zitjes in zon of schaduw gedurende de hele dag en geeft veel privacy. Puur genieten. De auto parkeert u op eigen terrein.

Een riant, licht, speels opgezet, ruim huis, ingericht om van te genieten voor een periode van 6 maanden.

Het weten waard:
- de huurprijs is exclusief gas, water, electra;
- de huurprijs is inclusief , tv en internet;
- het voorchotbedrag voor gas, water, electra, bedraagt € 350,- per maand;
- de waarborgsom is 1 maand;
- de minimale huurperiode is 5 maanden;
- de maximale huurperiode is 6 maanden;
- volledig gemeubileerd;
- dubbel glas;
- energielabel: B;
- zonnepanelen op het dak;
- centrale verwarming;
- vloerverwarming;
- gesloten haard;
- huisdieren (in overleg) / roken niet toegestaan;
- eigen parkeerplaats;

Deze woning is zeker een bezichtiging waard!

Neem gerust contact met ons om een bezichtiging af te spreken.

Expat & Property Management - your partner in quality rentals.

Kenmerken

Prijs
€ 2.500 p.m. ex.
Inrichting
Gemeubileerd
Status
Beschikbaar
Oplevering
17-11-2025

Bouw

Soort woonhuis
Eengezinswoning, 2-onder-1-kapwoning
Soort bouw
Bestaande bouw
Bouwjaar
1990
Onderhoud binnen
Uitstekend
Onderhoud buiten
Uitstekend

Oppervlakten en inhoud

Woonoppervlakte
203m²
Perceeloppervlakte
480m²
Inhoud
568m³

Indeling

Aantal kamers
6
Aantal slaapkamers
5
Verdiepingen
2

Energie

Energielabel
B

Buitenruimte

Ligging
Aan bosrand, Aan rustige weg, In woonwijk, Beschutte ligging
Tuin
Tuin rondom
Tuin rondom
360m², 1800×2000cm

Locatie

[ { "address": "Behrenslijn 13", "zipCode": "2728 AM", "city": "Zoetermeer", "lat": 52.0778116, "lng": 4.5089646, "heading": 0, "pitch": 0 } ]

Deze woning huren?

Neem contact met ons op. We geven u graag meer informatie of plannen een bezichtiging.

Uw bericht is naar ons verzonden. Wij nemen zo snel mogelijk contact met u op.

Er is iets mis gegaan met het versturen van het formulier.
Controleer of u alle velden (goed) heeft ingevoerd en probeer het nog een keer.

recaptcha
reCAPTCHA
PrivacyTerms
* invullen aub

Vergelijkbare woningen

Weteringdreef
109m² 4 slaapkamers
€ 2.500 p.m. ex.